STAMPA CARTELLO BACHECA
CAMBIA IMMAGINE


Residence di prossima realizzazione a Turi (Ba)
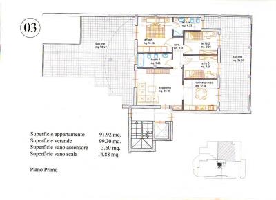
In una zona molto centrale di Turi, disponiamo di appartamenti in minicondominio da 8, di prossima realizzazione costruiti da un'azienda di decennale esperienza e con materiali di ottima qualità. Il Residence dispone a piano terra di locali con destinazione d'uso commerciale, mentre gli appartamenti sono posizionati sui 3 piani superiori. Alcuni esempi: * APPARTAMENTO di 82 mq, posto al 2° piano e composto da soggiorno/pranzo con zona cottura, 2 camere da letto, 2 bagni + 40 mq di verande € 150 * APPARTAMENTO di 91 mq, posto al 2° piano e composto da soggiorno, cucina abitabile...

Classe Energetica: Non inserita

Il Mondo Immobiliare S.r.l.
Via Largo Pozzi, 51 - Via Casamassima, 122 - Turi
tel. 080/4514088 - 080/8915356
web. http://www.ilmondoimmobiliare.it
stampato da www.soluzioneimmobile.com