STAMPA CARTELLO BACHECA
CAMBIA IMMAGINE


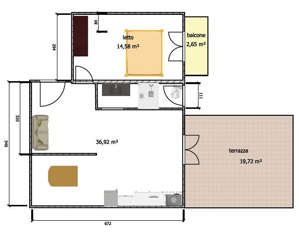
Bilocale con vista mare e terrazzino
Proponiamo in vendita bilocale sito a Salerno in via Monti con suggestiva vista mare sul Golfo di Salerno. L'immobile è collocato all'interno di un palazzo signorile completamente ristrutturato.. L'abitazione è ubicata al 3° piano e si struttura su un unico livello di mq 50 con camera da letto, soggiorno cucina, bagno e terrazzino di 20 mq vista mare. Annessi all'appartamento troviamo n° 2 posti auto coperti di proprietà. E' possibile altresì usufruire di un grande giardino condominiale. Incasa Soluzioni Immobiliari Piazza Flavio Gioia, 21 84122 - Salerno Tel. 0899432178 Cell....

Classe Energetica: G

Incasa
Piazza Flavio Gioia 21 - SALERNO
tel. 0899432178Fax. 0899432178
stampato da www.soluzioneimmobile.com