STAMPA CARTELLO BACHECA
CAMBIA IMMAGINE


MONDOLFO, NUOVA COSTRUZIONE, VISTA MARE
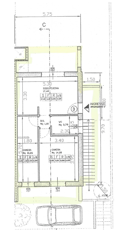
Vendesi a Mondolfo appartamento di nuova costruzione in quadrifamiliare al primo piano (ultimo piano), suddiviso in entrata indipendente, soggiorno angolo cottura con balcone vista mare, camera matrimoniale, cameretta e bagno. Balcone sulla zona notte. L'appartamento è già predisposto per la realizzazione di un soppalco dove è possibile realizzare anche un secondo bagno, ha predisposizione per aria condizionata e tetto in legno. Inoltre abbiamo garage al piano interrato. Classe Energetica n.d. Possibilità di scelta delle rifiniture interne (incluse nel prezzo). PREZZO TRATTABILE

Classe Energetica: Non inserita

CASE AL SOLE
VIA LITORANEA 95 MAROTTA DI MONDOLFO (PU) - Marotta di Mondolfo
tel. 3397025980
web. http://www.casealsole.eu
stampato da www.soluzioneimmobile.com