STAMPA CARTELLO BACHECA
CAMBIA IMMAGINE


VENDITA IMMOBILE INDUSTRIALE/ARTIGIANALE CON UFFICI DRAGONA - ROMA
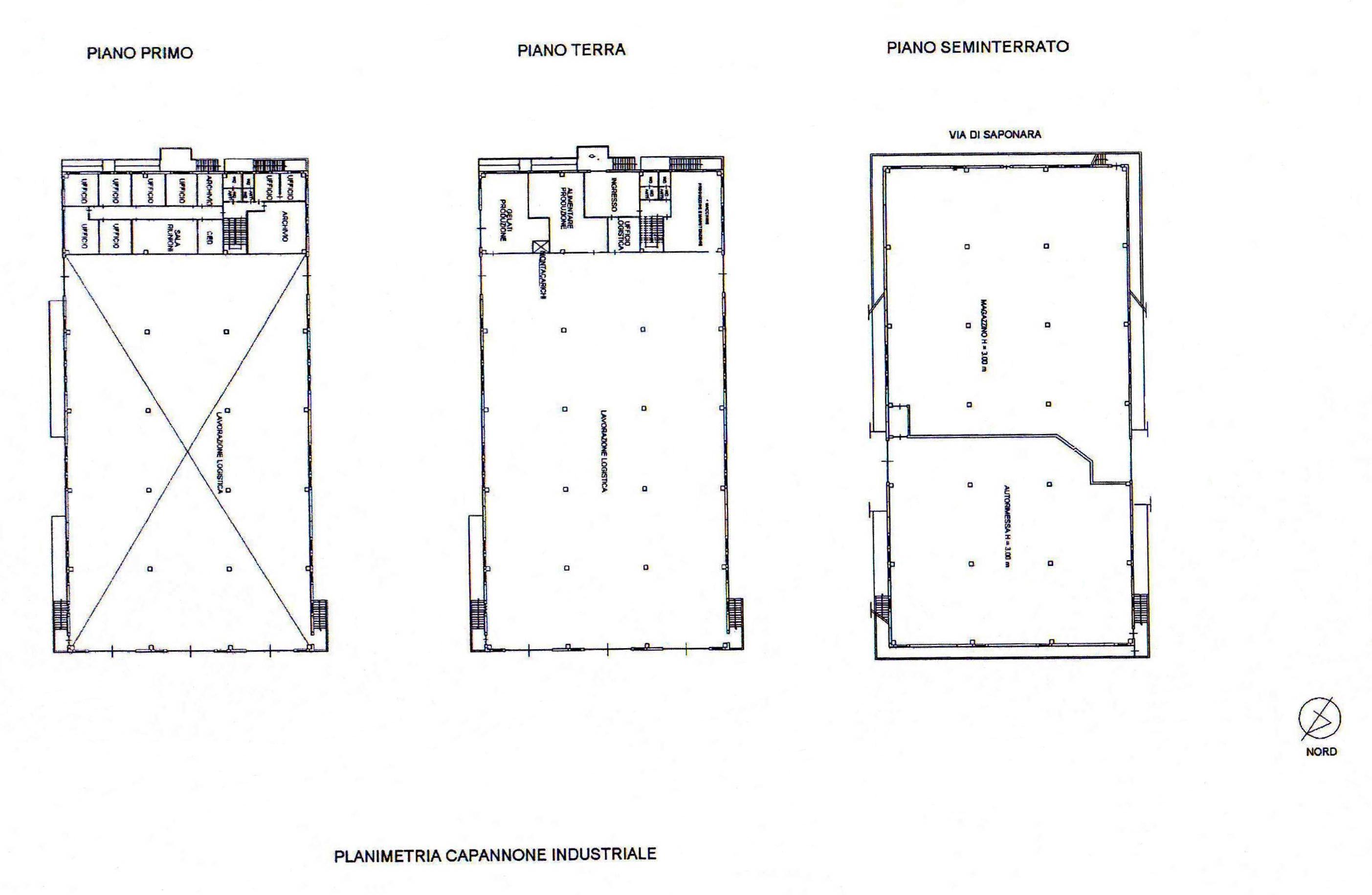
DRAGONA: IN VIA DI SAPONARA, ALL' INTERNO DEL CONSORZIO INDUSTRIALE, PROPONIAMO LA VENDITA DI UN CAPANNONE DI 3900 MQ SU 3 LIVELLI, COMPLETAMENTE RISTRUTTURATO E DOTATO DI TUTTI GLI IMPIANTI A NORMA, OLTRE AD UN PIAZZALE PERIMETRALE DI 2500 MQ, CON DOPPIO INGRESSO PER ENTRATA ED USCITA. I 3 LIVELLI SONO COSì COMPOSTI : PIANO TERRA 1860 MQ CA (H 9 METRI), PIANO SEMINTERRATO SBANCATO 1860 MQ CA ( H 3 METRI) CON RIBALTE, PIANO PRIMO AD USO UFFICI 305 MQ. L'IMMOBILE INOLTRE, E' DOTATO DI IMPIANTO FOTOVOLTAICO CON CONSEGUENTE ELEVATO RISPARMIO DI COSTI DI ENERGIA, OLTRE AD I CONTRIBUTI STATALI. V...

Classe Energetica: Non inserita

vita-s.r.l.
Via Armando Armuzzi, 6 - Roma
tel. 0656339587Fax. 0656038630
stampato da www.soluzioneimmobile.com