STAMPA CARTELLO BACHECA
CAMBIA IMMAGINE


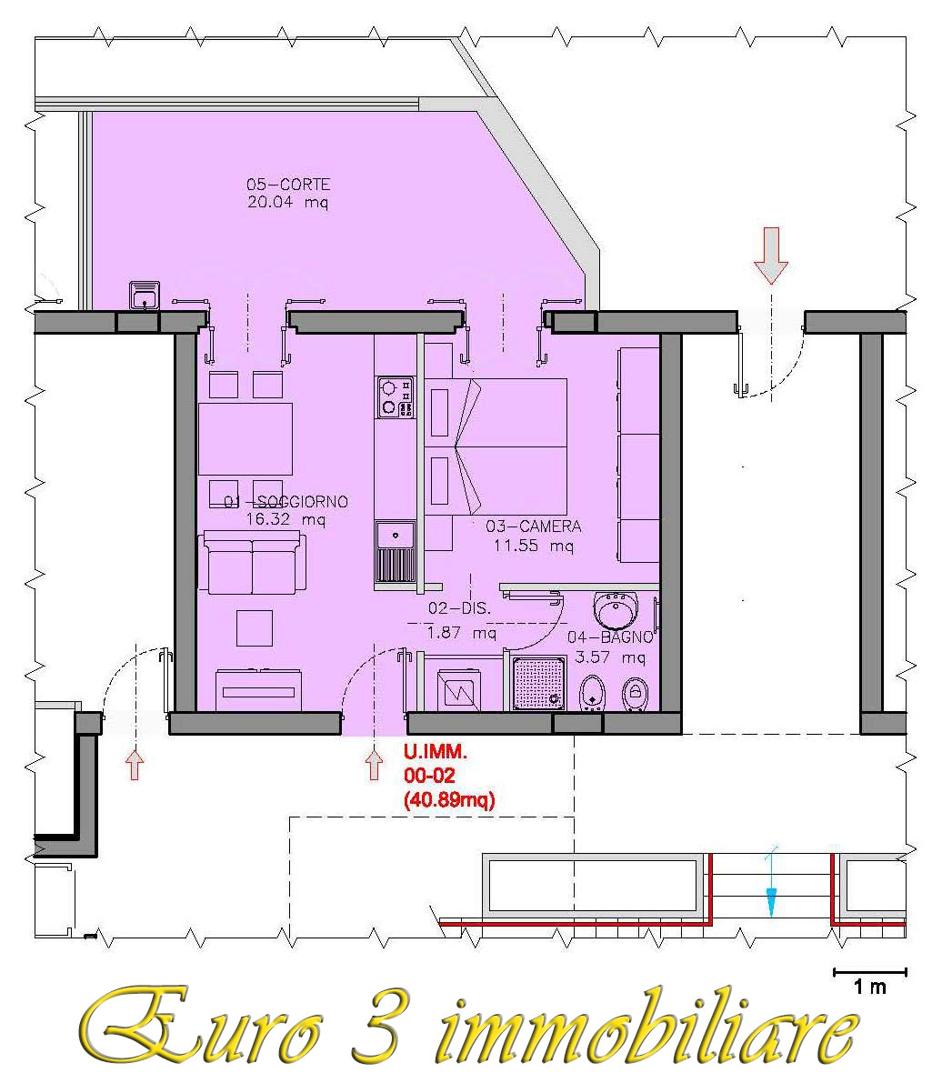
SAN BENEDETTO DEL TRONTO-APPARTAMENTO NUOVO MQ.40
SAN BENEDETTO DEL TRONTO – CENTRO. All’interno di elegante edificio di nuova costruzione, proponiamo in vendita appartamento di mq. 40 circa sito al piano terra con corte privata di mq. 20, composto da soggiorno con angolo cottura, camera matrimoniale, bagno. Possibilità di cantina. Immobile realizzato con criteri antisismici e impiantistica ultramoderna . Possibilità di personalizzare le finiture interne. Classe energetica: B. Euro 150.000,00 Codice: 2167. www.euro3immobiliare.it

Classe Energetica: b

Euro3immobiliare
Corso G. Mazzini, 108 - ascoli piceno
tel. 338/2368016
web. http://www.euro3immobiliare.it/
stampato da www.soluzioneimmobile.com