Appartamento trilocale in Costa Masnaga Rif. 1154
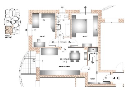
Costa Masnaga: IN PROMOZIONE!!! Pronta consegna, nella “Residenza Helios” proponiamo trilocale di mq 80 composto da ingresso, guardaroba, spazioso soggiorno con zona cottura, disimpegno, due camere e bagno. Balcone panoramico. Riscaldamento a pavimento, serramenti con vetri a basso emissivo, sanitari sospesi, TV satellitare, pred. aria condizionata ed antifurto. Cantina compresa, possibilità box. € 149.000 Minimo Anticipo. Classe energetica A 28,2 Kwh/m2a Rif. 1154
Classe Energetica: A